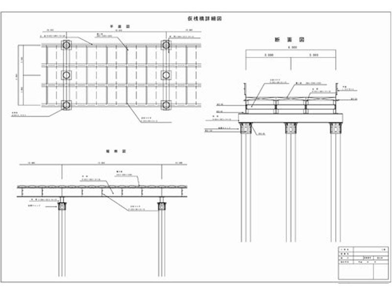
仮桟橋・仮構台
工法説明
鋼管はH鋼より剛性が高いため、仮桟橋・仮設構台の支持杭をH鋼から鋼管杭に変えることにより、支持杭の本数を少なくすることができる。また、10.0m以上のスパン長でも施工可能であるため、河川等の仮設工事において採用されている。この工法は、従来工法(H鋼杭)と比較して安価であり、架設、撤去が早いという特長がある。鋼管杭上部は、キャップを乗せてボルトで締付固定するため、再利用が可能である。
補強用のブレスは、当社開発のワンタッチ伸縮梁を使用するため、全てリース扱いが可能である。
特長
- スパン長(杭ピッチ)を長くすることが可能(最長支間長実績16m)
- 杭の本数を減らすことによりコスト削減・工期短縮
- 脚長15mまでは原則ブレス・水平材不要
- 杭数減・下部工不要による阻害率減少 環境に優しく安全性向上
- 杭打の種類が色々あるので比較的小さな機械で施工可能
- 勾配や幅員を自由に調整できる




